Stratified Structures
Aula Rector Dhanis
Studenten uit het derde bachelorjaar architectuur ontwerpen een zitobject voor een specifieke plek onder begeleiding van Mario Rinke (UAntwerpen), Gwenn Van Laer (UAntwerpen) en Gauthier Oushoorn (Kunstenaar, Brussel).
Vijf gebouwen op de eigen Stadscampus in Antwerpen treden op als gastheer: Paardenmarkt, Gebouw R, Rector Dhanis, Hof Van Liere en Campus Mutsaard. De studenten zelf zijn binnen de voorliggende opgave niet enkel ontwerper en maker, maar ook opdrachtgever. De resultaten tonen zich als prototypes die een dialoog aangaan met de identiteit van de ruimte waar ze zich in positioneren. Ze zijn op deze locaties te bezoeken tot september 2025, maar pretenderen hier langer te mogen blijven.
Hieronder ontdek je de ontwerpen voor Rector Dhanis:
- Rector Dhanis (Deep Surface 4)
Sarah Marckx - Miryane Percy Lozano - Chadia Machine - Moussa Mazaev - Rector Dhanis (Tectonics 4)
Yenthe Capens - Robbe Jacobs - Luka Separovic - Anouk Verheyen - Rector Dhanis (Tectonics 7)
Ella Aernouts - Luna Boumans - Balou Crols - Olivia Peeters
Rector Dhanis (Deep Surface 4)
Sarah Marckx - Miryane Percy Lozano - Chadia Machine - Moussa Mazaev
In het hart van de ruimte nestelt zich een bank, die niet louter als zitmeubel fungeert, maar een dialoog aangaat met de architectuur. Het meubel is verankerd naast een kolom en vertaalt de structurele krachten en richtingen van deze kern in een spel van houten latten. De bank creëert twee zitervaringen die reageren op de ruimtelijke condities. Het lager gelegen zitvlak vormt een geborgen, intieme plek onder een verlaagd plafond. In contrast biedt het verhoogde zitvlak een strategisch uitkijkpunt, een plek waar de ruimte zich opent en het licht vrij spel krijgt.
-
Rector Dhanis (Deep Surface 4) -
Rector Dhanis (Deep Surface 4) -
Rector Dhanis (Deep Surface 4) -
Rector Dhanis (Deep Surface 4) -
Rector Dhanis (Deep Surface 4) -
Rector Dhanis (Deep Surface 4) -
Rector Dhanis (Deep Surface 4) -
Rector Dhanis (Deep Surface 4) -
Rector Dhanis (Deep Surface 4) -
Rector Dhanis (Deep Surface 4) -
Rector Dhanis (Deep Surface 4) -
Rector Dhanis (Deep Surface 4) -
Rector Dhanis (Deep Surface 4) -
Rector Dhanis (Deep Surface 4)
Rector Dhanis (Tectonics 4)
Yenthe Capens - Robbe Jacobs - Luka Separovic - Anouk Verheyen
Het meubelstuk is zodanig gepositioneerd dat er een connectie ontstaat tussen de gebruikers ervan onderling en tussen de gebruikers en de buitenruimte. Daarnaast gaat het object een relatie aan met de aanwezige borstwering en akoestische panelen door een gelijkaardige ritmering toe te passen. Het ontwerp stelt een onderscheid voorop tussen een primaire, een secundaire en een tertiaire structuur. De dimensioneringen van de houten elementen bevestigen deze tektoniek. De ontwerpintenties tonen zich enerzijds in het creëren van een zitplaats voor 3 à 4 personen om even tot rust te kunnen komen met zicht op de omgeving. Hiervoor hebben we gewerkt met een uitnodigende positionering van een stoel en een bank. Anderzijds wil het ontwerp een relatie aangaan met haar structurele en materiële omgeving. Daarvoor hebben we inspiratie gehaald uit o.a. de ritmiek van de balustrade en de akoestische panelen alsook de inclinatie van de aula en haar kolommen.
-
Rector Dhanis (Tectonics 4) -
Rector Dhanis (Tectonics 4) -
Rector Dhanis (Tectonics 4) -
Rector Dhanis (Tectonics 4) -
Rector Dhanis (Tectonics 4) -
Rector Dhanis (Tectonics 4) -
Rector Dhanis (Tectonics 4) -
Rector Dhanis (Tectonics 4) -
Rector Dhanis (Tectonics 4) -
Rector Dhanis (Tectonics 4)
Rector Dhanis (Tectonics 7)
Ella Aernouts - Luna Boumans - Balou Crols - Olivia Peeters
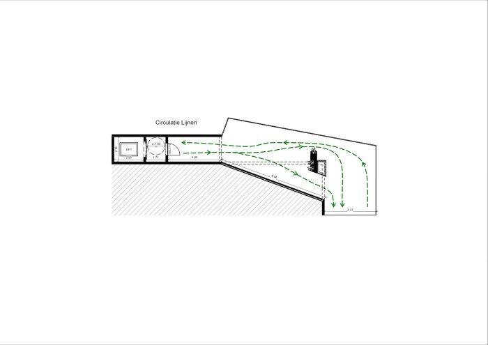
Dit zitobject is ontworpen als een uitnodigende plek waar mensen zowel individueel als in groep kunnen zitten. Door deze opstelling wordt er aangemoedigd om aan beide zijden plaats te nemen, wat de interactie bevordert. De schuine verbindingen in het ontwerp zorgen niet alleen voor extra stevigheid, maar dragen ook bij aan de esthetiek en vormgeving van de bank. Dit maakt de bank zowel functioneel als visueel aantrekkelijk.
-
Rector Dhanis (Tectonics 7) -
Rector Dhanis (Tectonics 7) -
Rector Dhanis (Tectonics 7) -
Rector Dhanis (Tectonics 7) -
Rector Dhanis (Tectonics 7) -
Rector Dhanis (Tectonics 7) -
Rector Dhanis (Tectonics 7) -
Rector Dhanis (Tectonics 7) -
Rector Dhanis (Tectonics 7)